2500 Baden, Melker Gasse 15/Haus 9

Doppelhaushälfte mit großem Garten, Dachterrasse und Fernblick in Zentrumsnähe

VERKAUFT

Viel Platz für die ganze Familie!

Bei der Planung und Errichtung dieser modernen, praktischen Doppelhaushälfte wurde vor allem auf die Bedürfnisse von Familien mit Kindern großes Augenmerk gelegt. Aber auch auf heute übliche Arbeitsverhältnisse wurde das Gebäude optimal angepasst. 

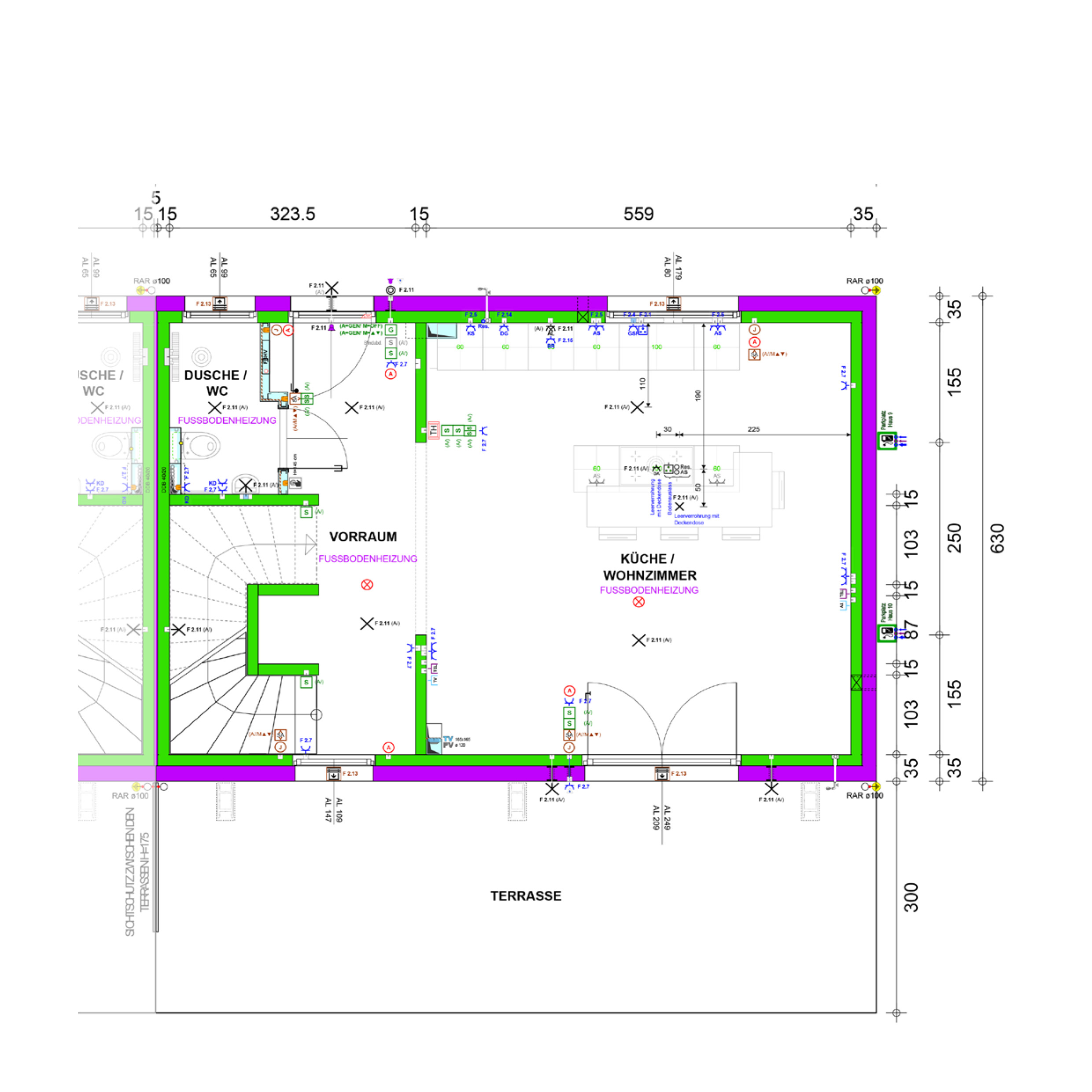
Der südwestseitig ausgerichtete Garten mit großer Terrasse bietet viel Platz und lässt keine Wünsche offen.

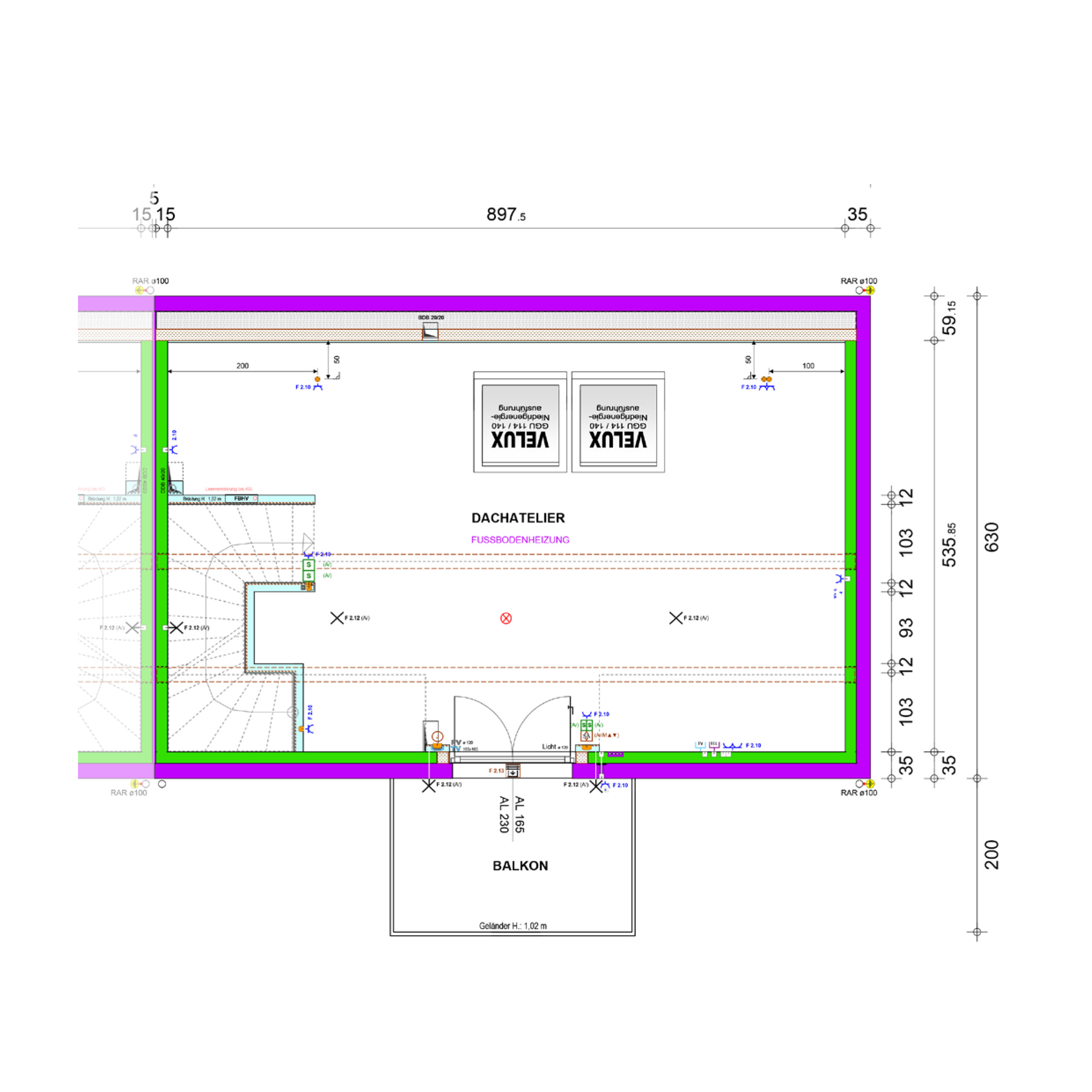
175 m² beheizte Raumfläche

in optimaler Raumaufteilung beinhalten auch ein tolles lichtdurchflutetes Dachatelier und einen beheizten Vollkeller.

Der atemberaubende, unverbaubare Blick von der Dachterrasse, sowie der südwestseitig ausgerichtete Garten mit großer Gartenterrasse, lässt keine Wünsche offen.

Die absolute Grünruhelage machen dieses Familienhaus in Zentrumslage zu einem einzigartigen Wohntraum.

Hochwertige Bauausführung

Die Konzeption und Gebäudeerrichtung sowie Baukontrolle und Qualitätssicherung befindet sich seit vielen Jahren in erfahrenen Händen von Experten und österreichischen Fachbetrieben.

Ein massives, doppeltes Mauerwerk zwischen den Hauseinheiten (mit zusätzlichen Schalldämmplatten) sowie ein druckwasserisolierter Vollkeller gehören bei uns genauso zum Standard wie eine intelligente Haustechnik mit Smartphone steuerbarer Elektrotechnik.

Extrem gute Wärmedämmung und der Anschluss an die Biogas Fernwärmeanlage garantieren energietechnische Unabhängigkeit vom globalen Energiemarkt und extrem günstige Bewirtschaftungskosten.

Daten und Fakten im Überblick:

  • ABSOLUTE GRÜNRUHELAGE mit guter Infrastruktur und bester Verkehrsanbindung
  • 175 m² beheizte RAUMFLÄCHE mit lichtdurchfluteten Räumen in
  • MASSIVBAUWEISE mit Wandaufbau eines Passivhauses, doppeltem Mauerwerk und hocheffizienten Schalltrennplatten zwischen den Hauseinheiten.
  • VOLLKELLER in wasserundurchlässiger Wanne mit Fußbodenheizung
  • E-BUS – Smartphone steuerbare Elektrotechnik mit
    technischer Vorbereitung für: E-Auto Ladestation, Photovoltaik, SAT-Anlage, sowie  superschnellen Internetanschluss von A1 und Kabelplus
  • EVN-BIOGAS hauseigener Fernwärmeanschluss mit Fußbodenheizung
  • 2 BÄDER mit Regendusche (1x Duo Badewanne) 
  • EDELSTAHLKAMIN
  • WEITZER PARKETT in allen Wohnräumen
  • WEITZER HOLZSTIEGENBELAG vom Keller bis ins Dachgeschoß
  • KUNEX Röhrenspanntüren mit Edelstahldrückern
  • ACTUAL Fenster und Terrassentüren mit
  • VALETTA Außenlamellenjalousien mit zentralgesteuertem E-Antrieb
  • VELUX Dachflächenfenster mit Verdunklungsrollos mit SOLAR-Antrieb
  • BAUMIT Malerei mit LUFTIONEN Beschichtung

Bauteile energietechnisch:

  • Wärme- und Energiebedarf: HWB: 32 kWh/m²a
  • Massivbauweise - Außenwand: U-Wert W/m² K: 0,15
  • Dachschräge: U-Wert W/m² K: 0,12
  • 3-Scheiben Verglasung: U-Wert W/m² K: 0,9 - 1,2